全國服務熱線
139 5368 9958
無填料凈化塔
一、概述
凈化塔廣泛應用于各種化工、電工電子、銅鋅冶煉、工業生產等多種領域的氣體吸收、凈化工藝,其結構形式多種多樣,應用較多的是填料塔及板式塔。
我公司生產玻璃鋼無填料凈化塔一種無填料噴霧式氣體凈化塔,在本塔中無填料及氣液交換塔盤等汽液交換裝置,采用專利霧化器進行液體霧化,使汽液完全飽和接觸。此種塔處理的主要有害氣體為硫酸霧、鹽酸霧、鉻酸霧、硝酸霧、磷酸霧、氫氟酸霧、氯化氫、氟化氫、硫化氫、氰化氫等高污染行業的廢氣進行針對性的凈化藥業配制吸收、凈化處理,達到工藝要求。玻璃鋼塔體根據客戶的氣體濃度,溫度,介質不同,選擇不同的特殊材質,進行工藝設計,達到既耐腐蝕又經濟適用。
二、工作原理
塔體外部的廢氣進入塔體內的氣體分布器,經氣體分布器分布后氣體向塔上方行走,在行走的過程中,遇到被霧化器霧化的液體,氣液進行完全飽和接觸并進行物理吸收或化學反應,中和或吸收后的液體進入貯液箱,并由水泵抽走,中和或吸收后的達標氣體則通過除霧器除霧后排入大氣中。也可根據您方工藝要求設計成直接排出塔體進入廢水池進水污水處理后,另作他用,,或者進行沉淀澄清以后根據酸堿度進行液體濃度再配制就行循環利用。
三、結構及特點

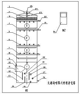
附圖為本塔的結構示意圖
其結構包括塔體、氣體分布器、霧化器、液體再分布器、除沫器以及自控儀表元器件。
本塔特點:
1、不用填料及氣液交換塔盤,系統阻力小,降低了風機功率,節約能耗;
2、采用專利霧化器,霧化噴嘴將液體完全霧化,氣液交換面積大,吸收、凈化充分;
3、因本塔采用霧化上噴,使液體與氣體交換時,經過上下兩上行程的交換,延長了一倍的交換時間;
4、因本塔省去了填料及塔盤,也就省去了填料及塔盤支架等支撐裝置及裝拆填料的人孔等,既為生產減少了工藝,又減輕了塔體的重量,使安裝及基礎變得簡單化,節約了投資。
5、本塔塔體為玻璃鋼整體纏繞的圓筒型塔體,無分段連接法蘭,強度高、無滲露隱患。
6、本玻璃鋼凈化塔可進行成套設計,PLC編程自動控制,減少人工,配備氣體在線分析儀、PH控制計、差壓變送器、壓力傳感器、流量傳感器、電導率儀、液位控制計、電磁閥、變頻器及控制柜等組成的控制系統,以上控制情況均以數字形式顯示在顯示器界面上,使管理人員一目了然,并有故障報警,便于管理與維護。
注:我公司對您公司生產.生活中的綜合廢水可進行物化處理,生化處理,深度處理,有需求請聯系我們。